Country Residence For Sale in Co. Antrim

Country Residence For Sale: 33 Caddy Road, Randalstown, Antrim, Co. Antrim

33 Caddy Road
Randalstown
Antrim
Co. Antrim
BT41 3DL

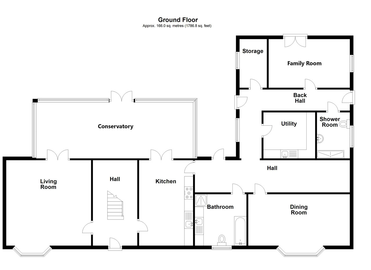
A truly unique period property dating back to the 1700s with immaculate grounds and fantastic outdoor entertainment areas on 2 acres with outbuildings including an external office.

Price: £625,000
Agent: Savills
Contact: Megan Houston
Phone: +44 (0)28 9026 7826
Email: [email protected]

Savills