Victorian Residence For Sale in Dublin 4

46 Wellington Road
Ballsbridge
Dublin 4
D04 RR71
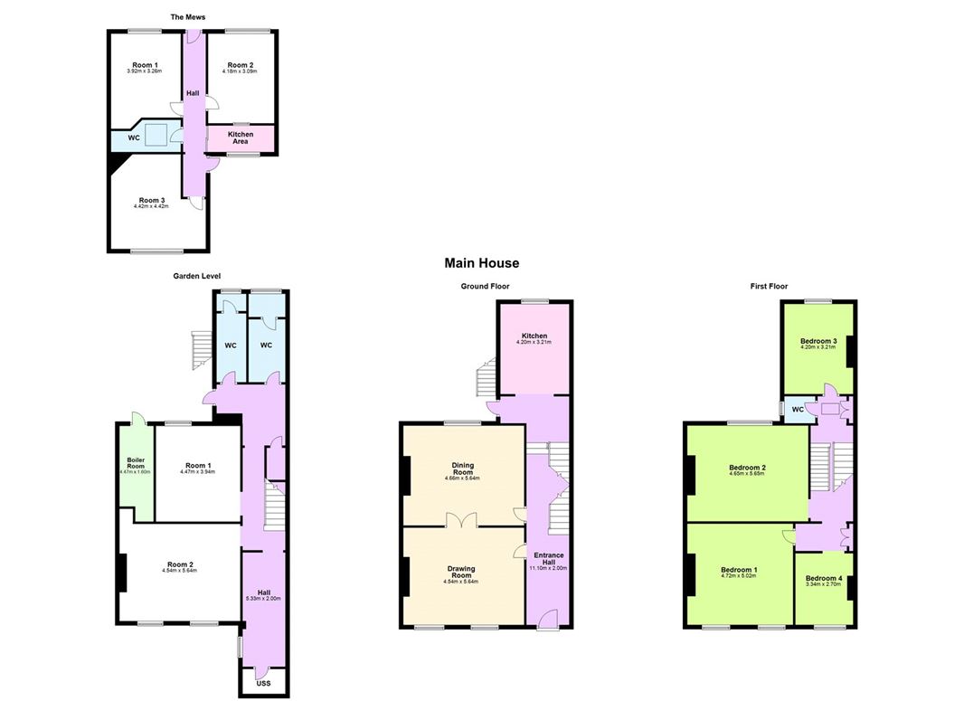
An impressively proportioned, classic terraced four-bedroom red brick Victorian residence built c.1840 and measuring approx. 278 sqm/2992 sqft.
Price: €2,750,000
Agent: Savills
Contact: Rose Lyle
Phone: +353 (0)1 618 1300
Email: [email protected]
– Stained glass windows
– Exceptionally high ceilings
– Mews (62 sq.m. /667 sq.ft.)
– Intricate cornicing
– Sash windows
– 130 ft. rear garden
– Main house measuring approx. 278 sqm/2992 sqft.
Dating back to c.1840, no. 46 is an attractive Victorian red brick terraced home of considerable elegance extending to approx. 278 sq. m. / 2,992 sq. ft. over three floors. This home, with original period details, is exceptionally bright and well proportioned throughout. The property is set back from Wellington Road behind wrought–iron gates, opening into the front area with lawn and Granite steps up to the entrance hallway. To the rear is a large garden extending to approx. 130 ft. with mews house. The mews measures approx. 62 sq. m. / 667 sq. ft. The entire property, main house and mews are in need of complete refurbishment and have excellent potential to be redeveloped back to a magnificent townhouse and superb mews residence in Dublin 4.
The accommodation comprises; a flight of Granite steps ascends to the hall door with original stained glass fanlight opening into an entrance hall with an abundance of period features. To the left, there is a bright and spacious front reception room with two picturesque sash windows overlooking the front garden. Interconnecting doors lead to a second reception room facing the rear garden with sash window and working shutters. Additional details include Pine flooring running throughout these rooms with intricate cornicing and ceiling roses. On the return is a study / fourth bedroom and W.C. On the first floor there are three good sized bedrooms. At garden level there is a second entrance hall, two further reception rooms and two WC’s also situated on this level, also with direct access to the rear garden.
Local Information
Ballsbridge is a leafy suburb and many large companies have their headquarters here and so the area is full of trendy shops, a wide selection of fine restaurants, gastro pubs, and traditional public houses. On the northern end of Wellington Road is the bustling Upper Baggot Street and Pembroke Road, and the opposite end opens onto Wellington Place. The Aviva stadium, RDS, Grand Canal and Herbert Park are all within a short walking distance.
This prime Dublin 4 address has every conceivable amenity on its doorstep including a wealth of shops and restaurants on Baggot Street Upper. The area also hosts several of the top schools and colleges.
No. 46 is ideally located between Dublin’s two rail systems; both the LUAS and DART are 10 minutes away and the location is served by numerous Dublin bus routes as well as the AIRCOACH.
Almost all of Dublin’s iconic architectural, literary, cultural, sporting and entertainment attractions are within an easy 2 km distance (5-30 min walk) from this property: Aviva Stadium, RDS, St Stephen’s Green, Grafton Street, Book of Kells at Trinity College, National Library, National Gallery and National Concert Hall, National Theatre of Ireland, Art Gallery and Temple Bar.
BER Details
Exempt





















