Former Pub and Restaurant For Sale in Co. Laois

McEvoys
Main Street
Abbeyleix
Co. Laois
R32 P29R
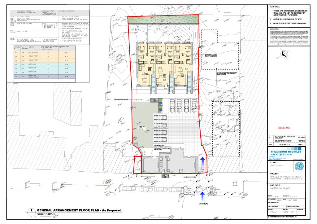
Former pub and restaurant built by the original De Vesci family around 1885 fronting onto Main Street with potential planning permission for 7 apartments.
Price: €700,000
Agent: CBPM Real Estate
Contact: Caroline Bergin
Phone: +353 (0)57 8635824
Email: [email protected]
This property built by the original De Vesci family and on the Record of Protected Structures dates from around 1885. McEvoy Pub and Restaurant fronting onto Main Street is a prime investment opportunity. It measures approximately 510.24msq (5492.18 sqft) with 0.12 hectares (0.29 acres) of land. The property benefits from generous front display and due to its location, it enjoys a high level of foot traffic and passing vehicles.
Originally a restaurant / bar / courtyard, it has now been turned into residential accommodation with 5 bedrooms, 2 living spaces, shower rooms, bathrooms and a kitchen area, all at ground level, with a courtyard to the rear with side access at both sides of the building. Internal walls are stud walls and can easily be returned to the restaurant’s original layout. There is a shared right of way to the left-hand side of the property.
On the first floor, there is a large 2 bed / 2 bath apartment, consisting of entrance hall, utility/storage area, large open plan living area with kitchen / dining area, main bathroom, 2 generous size bedrooms with an ensuite (plumbing needs to be completed).
The property has potential planning permission for 7 apartments consisting of 6 x 2 bed apartments (73.94sqm, 795 sqft) and 1 x 3 bed apartment (95.48sqm, 1027.73 sqft) plus 8 car parking spaces.
Abbeyleix is a renowned Heritage town in the heart of County Laois. It is well connected to Dublin via the M7 motorway and public transport making it easily accessible for both locals and visitors alike. It is centrally located to local towns such as Durrow, Ballinakill, Mountrath, Rathdowney, and Portlaoise and only a 50-minute drive to Dublin.
Features
– Busy Road Frontage
– Folio Number – LS13376F
– Property has potential planning permission
– Close to all amenities
– Close proximity to M7
– On 0.12 hectares (0.29 acres)
– Built in 1885
BER Details
Exempt
Hallway – 2.03m x 5.00m
Utility – 0.86m x 5.29m
Kitchen – 8.25m x 5.20m
Bedroom – 3.66m x 3.40m
Bedroom – 3.95m x 5.31m
Toilet / Shower – 3.18m x 1.93m
Downstairs
Hallway – 5.46m x 1.26m
Room 1 – 3.25m x 5.62m
Room 2 – 3.90m x 5.37m
Keg Room – 2.43m x 3.47
Back Hallway – 4.46m x 14.52m
Front Room – 5.12m x 5.04m
Living room to Courtyard – 4.43m x 4.48m
Room 3 – 2.17m x 4.14m
Room 4 – 2.17m x 3.55m
Room 5 – 2.17m x 3.65m
Disabled Toilets – 2.07m x 1.35m
Men’s Toilets – 2.64m x 3.06m
Ladies Toilets – 2.07m x 3.08m
Back Hallway – 1.35m x 9.07m x 6.10m
3 Shower Room – 2.78m x 1.48m (each)
Kitchen – 7.34m x 4.26m
Walk-in Fridge x 2 – 1.46m x 3.06m (each)
Outside
Courtyard – 9.00m x 10.20m




























