Country Home and Cottage For Sale in Co. Kilkenny

The Stables
Derrynahinch
Ballyhale
Thomastown
Co. Kilkenny
Renovated country home and cottage at the end of a private laneway on about 18 acres combining formal landscaped areas with informal lawns.
Price: €895,000
Agent: Savills
Contact: Guy Craigie
Phone: +353 (0)1 618 1300
Email: [email protected]
– Picturesque country farmhouse enjoying a private setting
– About 7 hectares / 18 acres
– Additional, spacious and modern 2 bedroom cottage
– Blend of traditional character interiors with modern convenience and layout
– Converted stables offering further multi-use
– Thomastown 8km, Kilkenny City 22km
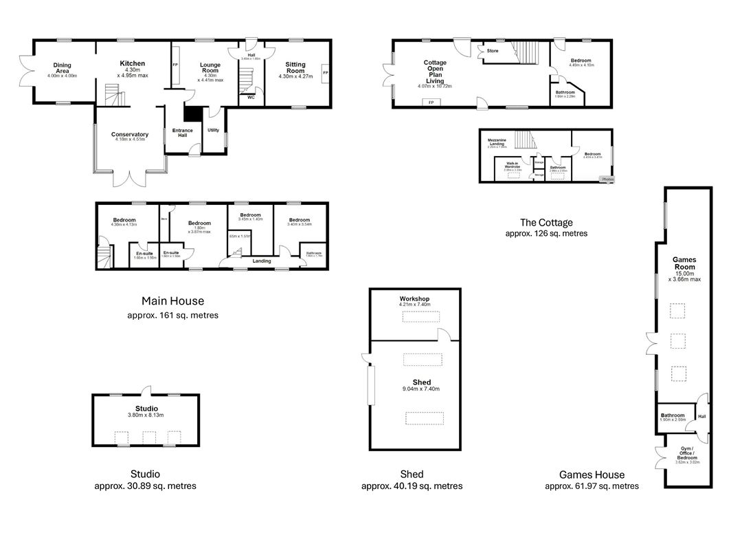
The Stables – Main Residence
This charming home sits at the end of a private laneway and can be entered through the front garden or via a distinctive red door in the sunny rear courtyard. From the moment you step inside, the care and attention given to design, comfort, and efficient use of space is immediately apparent. Traditional character blends seamlessly with modern convenience, and the thoughtful layout suits contemporary family living.
The welcoming country kitchen features a restored Aga, modern appliances, and exposed timber beams. Steps lead down to an impressive dining room with a vaulted ceiling and French doors opening onto a west-facing patio that captures panoramic countryside views.
Beyond the kitchen, a timber-beamed archway leads to a bright conservatory with dual-aspect views to the east and west. French doors open onto a stone courtyard, while parquet flooring, exposed stone walls, and feature lighting add warmth and charm.
The living room, accessed from the entrance hall, includes a tiled floor and striking stone fireplace with a timber beam mantel — an inviting space for cosy evenings. The main sitting room is spacious, light-filled, and beautifully finished with a stone fireplace, timber mantel, and bespoke recessed shelving with ambient lighting.
Upstairs, four beautifully decorated bedrooms await, three of which are ensuite. All enjoy sweeping views of the surrounding countryside. Period features, including sash windows and exposed beams, are thoughtfully integrated within a modern, comfortable layout. The Stables stands as a superb example of how a traditional farmhouse can be transformed into a contemporary family home without losing any of its historic charm.
The Stables Cottage
Situated across the courtyard from the sunroom, the cottage has been carefully renovated to reflect the comfort and style of the main farmhouse. It features a spacious open-plan living/kitchen area, two bedrooms, two bathrooms, and a mezzanine relaxation space. This building is ideal for multi-generational living, offering a practical solution for an elderly parent or an adult child seeking independent accommodation or as an additional income stream.
The Stables Games and TV Room
Perfect for children, teenagers, or visiting family, this generous space has been upgraded to a high standard by the current owners. It accommodates multiple activities with ease. A bathroom adjoins the main room, and further down the hall is a flexible room suitable for an office, home gym, or additional bedroom.
The Stables Studio
Recently renovated, this impressive space is designed to maximise its high ceilings and abundant natural light. The airy layout and comfortable living area make it an ideal home studio or a home office for those seeking a peaceful and inspiring workspace.
Gardens and Grounds
The gardens are a standout feature, combining formal landscaped areas with informal lawns framed by mature hedging, paddocks, and open grassland. The grounds are perfect for family life and entertaining, featuring a tennis court, raised vegetable beds, a sunny patio ideal for summer barbecues, and peaceful woodland walks.
Outbuildings
A large shed with a fully fitted workshop provides excellent flexibility and is suitable for a range of uses. Positioned separately from the main residence, it is easily accessed from the courtyard and benefits from water and electricity.
Land
A separate entrance to the north of the property allows access to the rear grassland, enhancing the overall usability of the site. The land slopes gently away from the house and drains naturally toward the lake at the boundary. A portion of the grounds includes forestry, offering amenity value and providing a natural privacy buffer for the property.
Local Information
The Stables offers idyllic country living just 8km from the charming village of Thomastown, within easy access to key regional and national destinations. The M9 motorway is only 5 km away, making Kilkenny City very accessible for daily visits and the M50 and Dublin Airport within easy reach.
The medieval city of Kilkenny is renowned for its rich history, vibrant cultural scene, and diverse range of festivals, shops and restaurants. In the heart of the city lie historic landmarks such as Kilkenny Castle, a 12th century restored castle open to the public which attracts visitors from all over the world, and St. Canice’s Cathedral. Also, nearby Waterford offers further shopping and dining options, and further south towards the Waterford coast lies the popular seaside town of Tramore.
County Kilkenny has a proud sporting history and offers a wide variety of quality sporting and recreational activities. Golfers are well served by courses at Castlecomer and the elegant Mount Juliet Estate while racing enthusiasts can enjoy top-class facilities at Gowran Park and in the adjoining county of Tipperary Clonmel racecourse.
A variety of primary and secondary schools are available in Kilkenny City including Loreto secondary school, CBS and Kilkenny College.
BER Details
BER D2





































